< Vissza a kínálathoz

< Vissza a kínálathoz

Baby Zafír

#G25-1010

  • Új moduláris lakóház
17 900 000 Ft

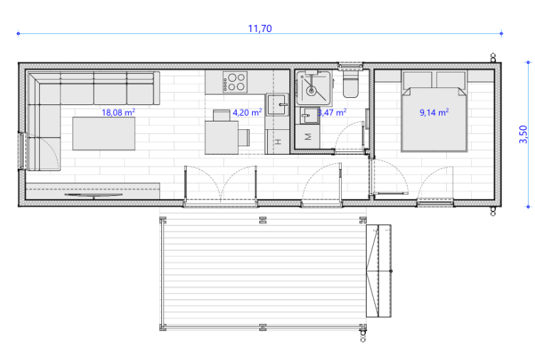
Lakóház pataméterek:

  • Hosszúság: 11,7 m
  • Szobaszám: 1 db
  • Szélesség: 3,5 m
  • Alapterület: 35 m2

Leírás:

Baby Zafír – a Gaia termékcsalád legkisebb tagja
A Baby Zafír a Gaia termékcsalád legkisebb, de annál különlegesebb otthona. Egyetlen modulból álló, EMI engedéllyel rendelkező, szerelt vázszerkezetű ház, amely teljes értékű, négyévszakos lakhatást biztosít – és mindössze önkormányzati bejelentéssel lehelyezhető.

Ez a modell nettó 35 m² alapterületű, így ideális választás hétvégi háznak, zártkerti ingatlanra, vagy olyan telekre, ahol lakóingatlan építési engedélye nem lehetséges. És ami igazán vonzó: nettó 17 900 000 Ft + 27% ÁFA áron elérhető, kulcsrakész kivitelben.


  • Mitől különleges a Baby Zafír?
  • A Baby Zafír nem csupán egy kis ház – egy okos, átgondolt, modern élettér, amely minden részletében a kényelmet szolgálja.
  • Könnyű telepítés: elegendő egy egyszerű önkormányzati bejelentés, és akár 70 munkanap alatt átveheted új otthonodat.
  • Rugalmas alapozás: telepíthető talajcsavarra vagy pont alapra, de akár síklemez-beton alapozással is, ha hosszú távra tervezel.
  • Kulcsrakész átadás: minden esetben komplett, azonnal használható otthont adunk át.
  • Minőségi szerkezet: 6×14-es KVH vázszerkezet, 15 cm kőzetgyapot szigetelés az aljzatban, falakban és mennyezetben.
  • Háromrétegű nyílászárók: energiahatékonyság és komfort minden évszakban.

Standard felszereltség

  • A Baby Zafír házak mindig kulcsrakész állapotban kerülnek átadásra, az alábbi alapfelszereltséggel:
  • Külső burkolat: lemezborítás, gondozásmentes kivitel és cserepeslemez tetőhéjazat.
  • Fürdőszoba: teljesen burkolt, SCP lapokkal ellátva, szaniterekkel és gépesítéssel.
  • Nyílászárók: fehér műanyag ablakok redőnnyel és beépített szúnyoghálóval.
  • Klíma és fűtés: 3,5 kW-os hűtő–fűtő klíma + hálószobai fali fűtőpanel.
  • Elrendezés: amerikai konyhás nappali, egy hálószoba, egy fürdőszoba és előtér.

Extra lehetőségek
A Baby Zafír alapfelszereltsége mellé igény szerint választhatsz teraszt is, amelynek ára:
nettó 135 000 Ft + 27% ÁFA / m².

Ezen felül bemutatóházainkban inspirációként konyhai berendezéseket, csillárokat és beépített szekrényeket is bemutatunk – és ha kéred, ezekből is egyedileg állítunk össze Neked megoldást.


Miért érdemes választanod?
Elérhető ár: már nettó 17 900 000 Ft + 27% ÁFA áron, kulcsrakész kivitelben.

  • Gyors átfutás: maximum 70 munkanap alatt átadásra kész.
  • Egyszerű telepítés: önkormányzati bejelentés elegendő, nincs szükség építési engedélyre.
  • Négyévszakos használat: magas szigetelés, háromrétegű üvegezés, modern fűtés és klíma.
  • Bemutatóudvarban megtekinthető: Kecskeméten, teljes felszereltséggel, inspiráló kiegészítőkkel.

Tapasztald meg személyesen!
Gyere el kecskeméti bemutatóudvarunkba, és nézd meg a Gaia termékcsalád legkisebb tagját, a Baby Zafírt!
A fényes terek, a praktikus elosztás és a gondosan kidolgozott részletek biztosan Téged is meg fognak győzni.

Baby Zafír – kicsi alapterület, nagy élmény. ✨

Ajánlatkérés / Érdeklődés

Ezzel a lakóházzal kapcsolatosan érdeklődsz majd: Baby Zafír #G25-1010